您现在的位置是:主页 > 传统办公楼 > 传统办公楼
静安中港汇办公楼出租:恒丰路黄金商务大道上的5A级办公场地
这里不收中介费2025-02-18【个人博客】人已围观
简介静安中港汇办公楼出租:恒丰路黄金商务大道上的5A级办公场地中港汇静安项目介绍静安中港汇位于上海市静安区恒丰路329号,是黄金商务大道上的一个重要商务办公项目。
中港汇静安
项目介绍
静安中港汇位于上海市静安区恒丰路329号,是黄金商务大道上的一个重要商务办公项目。该项目由天目西路街道党群服务中心、中港汇·静安楼宇事务委员会和沪港联合集团联手打造,于2012年竣工,总建筑使用面积约13万平方米,由一幢5A级办公商务楼和一幢大型商业楼组成。

中港汇·静安位于恒丰路黄金商务大道的核心地点,四通八达。项目附近环绕着多个高端商业中心和五星级酒店,如嘉里不夜城、凯德星贸中心、上海静安洲际酒店、上海静安铂尔曼酒店和上海浦西万怡酒店等1。此外,项目距离地铁1号线、12号线、13号线的汉中路站仅需步行5分钟,交通极为便捷。

中港汇·静安办公楼总共有29层,采用当代化设计,大使用面积玻璃幕墙使得光线充足,楼层净高2.8米,提供宽敞明亮的办公环境。大厦配备了10部客梯和2部货梯,确保日常办公的高效运转。此外,大厦还拥有500余个停车位 晶采世纪大厦,月租费用为1380元/个,充分满足企业和访客的停车需求。

为了满足企业和白领的多元化需求,中港汇·静安还特别设立了“中港汇·和空间”,这是沪上首个汇集爱心母婴室、专业淋浴房、智慧图书角和企业文化展示角四大特色功能载体的企业白领活动空间。爱心母婴室为哺乳期女性提供了温馨的私密空间,专业淋浴房则为热爱运动的员工提供了便捷的洗漱空间。
项目概况信息
【基本参数】
总建使用面积:58,601平方米
办公楼层:29层(名义楼层)
大堂:首层双大堂
楼层净高:2.8米
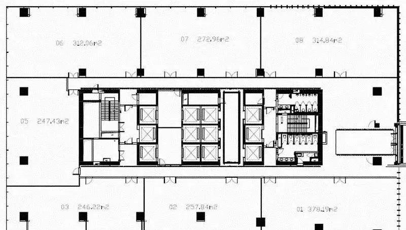
整层使用面积:2,332.55平方米
电梯数量:10部客梯,2部货梯
空调系统:VAV空调电子空气过滤系统
车位配置:500余个(停车费1380元/个/月)
24小时冷却水:提供24小时冷却水供租户机房使用
物业费:32元/平方米/月
项目交通

项目实景图



大堂丨电梯



办公室精装交付





整层平面图

每个商圈我们都有不同面积和价格的办公楼房源可供选择,具体可以添加我微信或者来电咨询:
021-51250158 微信:15021058909 无中介费!
很赞哦! ()
上一篇:上海静安区航创990创意园办公室及办公楼出租信息与物业详情
下一篇:没有了
相关文章
点击排行
白玉兰广场写字楼,办公室出租/租金猜你喜欢
站点信息
- 建站时间:2020-02-24
- 网站程序:WP7.5
- 主题模板:我也不知道啊
- 文章统计:1577 篇
- 源码统计:6 篇
- 微信公众号:扫码,关注我的娱乐圈

